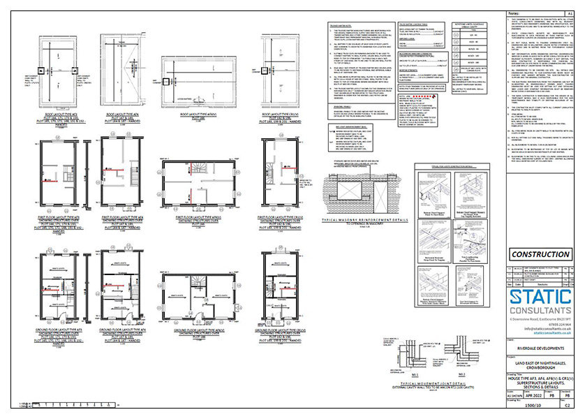
Housing Development (75 Units)
The Nightingales, Crowborough
Multi-phase housing development consisting of 75 units in total, mostly two storey residential houses with some maisonettes. We provided full substructure and superstructure design services for a traditional foundation scheme with some piling for Riverdale Development Ltd.




